0510-86408127

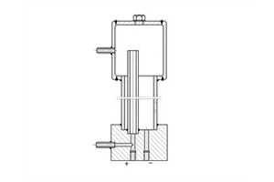
单、双室平衡容器

日期:2022-02-28 点击率:1914


【特点】

适用于液位、汽包水位的高度测量。



【规格】

PN : <32MPa


【型号】

双室平衡容器需提供测量高度,即±mm

上一篇 : 限流孔板

下一篇 : 插入式多喉径流量计